不動産取引事業
川口市榛松条件なし売地
物件概要
| 物件種別 | 売地 |
| 物件所在地 | 川口市榛松 |
| 最寄駅 | 日暮里舎人ライナー「見沼代親水公園」駅徒歩20分 |
| 土地権利 | 所有権 |
| 地目 | 宅地 |
| 土地面積 | 1号地:92.78㎡、2号地:92.75㎡ |
| 接道状況 | 東側約9m公道面 |
| 用途地域 | 第1種住居地域 |
| 建蔽率/容積率 | 60%/200% | 他法制限 | 高さ10m超 |
| ポイント | 建築条件なし |
| 備考 | ※本物件について、当サイト掲載内容と現況に相違がある場合は現況を優先と致します。 |
物件画像
| 区画図 | 参考プラン |
|---|---|
![]() |
![]() |
| 現地1 | 現地2 |
![]() |
![]() |
コスモフェスタ戸田
物件概要
| 物件種別 | 中古マンション |
| 物件所在地 | 戸田市笹目1丁目 |
| 最寄駅 | JR埼京線「北戸田」駅 徒歩13分 |
| 間取り | 2SLDK |
| 土地権利 | 所有権 |
| 建物構造 | 鉄筋コンクリート造5階建2階部分 |
| 専有面積 | 64.96㎡ |
| バルコニー面積 | 8.7㎡ |
| 築年月 | 平成6年2月 |
| 管理形態 | 全部委託 巡回 |
| 管理費 | 月額18,600円 |
| 修繕積立金 | 月額14,900円 |
| 管理会社 | 大和ライフネクスト(株) |
| 施工会社 | 多田建設(株) |
| 現況 | 賃貸中 |
| 引渡日 | 相談 |
| ポイント |
☆新規リフォーム済 ☆オートロック |
| 設備内容 | 東京電力・都市ガス・エレベーター |
| 備考 |
※ペット飼育不可 ※本物件について、当サイト掲載内容と現況に相違がある場合は現況を優先と致します。 |
| 取引態様 | 売主 |
物件画像
| 間取図 | 外観 |
|---|---|
![]() |
![]() |
| 洋室6帖 | LDK |
![]() |
![]() |
ヒルサイド小日向
物件概要
| 物件種別 | 一棟売アパート |
| 物件所在地 | 文京区小日向三丁目 |
| 最寄駅 | 東京メトロ丸の内線『茗荷谷』駅徒歩6分 / 東京メトロ有楽町線『護国寺』駅徒歩10分 |
| 土地権利 | 所有権 |
| 土地面積 | 公簿:112.44㎡(34.01坪) |
| 接道状況 | 南側3.2m私道 |
| 建物面積 | 164.10㎡(49.64坪) |
| 建物構造 | 鉄骨造陸屋根3階建 |
| 築年月 | 平成22年7月 | 総戸数 | 1K×6戸 |
| 用途地域 | 第一種中高層住居専用地域 |
| 高度地区 | 第二種高度地区 14m高度地区 |
| 防火指定 | 準防火地域 |
| 建ぺい率 | 60% |
| 容積率 | 160% |
| 他法制限 | 第一種文教地区 |
| 現況 | 賃貸中 |
| 引渡日 | 相談 |
| ポイント |
☆積水ハウス施工のシャーメゾン ☆茗荷谷駅徒歩7分の好立地 ☆満室時想定表面利回り約4.22% |
| 設備内容 | 都市ガス・公営水道・公共下水 |
| 備考 |
◎サブリース中(2023年7月末まで) ◎サブリース解約後年間賃料:5,832,000円 ◎確定測量(実測図あり) ※本物件について、当サイト掲載内容と現況に相違がある場合は現況を優先と致します。 |
| 取引態様 | 売主 |
物件画像
| 外観1 | 外観2 |
|---|---|
![]() |
|
目黒区碑文谷事業用地
物件概要
| 物件種別 | 売地 |
| 物件所在地 | 目黒区碑文谷1丁目 |
| 最寄駅 |
東急目黒線『西小山』駅徒歩9分 東急目黒線『武蔵小山』駅徒歩15分 東急東横線『学芸大学』駅徒歩19分 |
| 土地権利 | 所有権 |
| 地目 | 宅地 |
| 土地面積 | 公簿:96.03㎡(約29.04坪) *セットバック有* |
| 接道状況 | 現況:北東約2.3m~3.3m私道 |
| 建物構造 | 木造2階建 |
| 建物面積 | 118.98㎡(33.99坪) |
| 築年数 | 昭和45年12月 |
| 種類 | 共同住宅 |
| 用途地域 | 第1種中高層住居専用地域 |
| 建蔽率/容積率 | 60%/200% |
| 防火地域 | 準防火地域 |
| 高度地区 | 17m2種高度地区 |
| 日影規制 | 3h-2h/4m |
| 他法制限 | 最低敷地60㎡ |
| 現況 | 古屋有(更地予定) |
| ポイント | 2路線3駅利用可! |
| 備考 | ※本物件について、当サイト掲載内容と現況に相違がある場合は現況を優先と致します。 |
物件画像
| 現地 | 道路 |
|---|---|
![]() |
![]() |
| 道路 | 道路 |
![]() |
![]() |
ハイム秋葉原
物件概要
| 物件種別 | 中古マンション |
| 物件所在地 | 東京都台東区台東一丁目 |
| 最寄駅 | JR・東京メトロ日比谷線「秋葉原」駅 徒歩8分 |
| 間取り | 1R |
| 土地権利 | 所有権 |
| 建物構造 | 鉄筋コンクリート造 8階建 |
| 専有面積 | 23.45㎡ |
| 築年月 | 昭和54年10月 | 総戸数 | 28戸 |
| 管理形態 | 一部委託 |
| 管理費 | 月額6,246円 |
| 修繕積立金 | 月額7,032円 |
| 施工会社 | 不動建設株式会社 |
| 現況 | 事務所として賃貸中 |
| 引渡日 | 相談 |
| ポイント |
駅徒歩8分の好立地 |
| 設備内容 | 東京電力・都市ガス・公営水道・公共下水 |
| 備考 | ※本物件について、当サイト掲載内容と現況に相違がある場合は現況を優先と致します。 |
| 取引態様 | 売主 |
物件画像
| 間取図 | 内装1 |
|---|---|
![]() |
|
| 内装2 | 内装3 |
![]() |
|
カーサ大岡山
物件概要
| 物件種別 | 中古マンション |
| 物件所在地 | 東京都大田区北千束3丁目 |
| 最寄駅 | 東急目黒線・東急大井町線「大岡山」駅 徒歩2分 |
| 間取り | 1DK |
| 土地権利 | 所有権 |
| 建物構造 | SRC造地下1階付10階建 |
| 専有面積 | 32.76㎡ |
| バルコニー面積 | 3.19㎡ |
| 築年月 | 1971年10月 | 総戸数 | 72戸 |
| 管理形態 | 全部委託 通勤 |
| 管理費 | 月額10,004円 |
| 修繕積立金 | 月額7,300円 |
| 管理会社 | (株)エム・シーサービス |
| 施工会社 | (株)中野組 |
| 現況 | 空室 |
| 引渡日 | 相談 |
| ポイント |
☆2線共に急行停車駅で交通至便 ☆大岡山北口商店街至近で買物便利 ☆洗足池公園近くで環境良好 ☆8階につき陽当り・眺望良好 |
| 設備内容 | 東京電力・都市ガス・公営水道・公共下水 |
| 備考 |
※保険積立金2,198円 ※調整費18円 ※本物件について、当サイト掲載内容と現況に相違がある場合は現況を優先と致します。 |
| 取引態様 | 売主 |
物件画像
| 間取図 | 内装1 |
|---|---|
![]() |
![]() |
| 内装2 | 内装3 |
![]() |
![]() |
チェリーマンション
物件概要
| 物件種別 | 中古マンション |
| 物件所在地 | 東京都世田谷区桜上水4丁目 |
| 最寄駅 | 京王線「桜上水」駅 徒歩3分 |
| 間取り | 1LDK |
| 土地権利 | 所有権(非敷地権) |
| 建物構造 | 鉄筋コンクリート造陸屋根3階建1階部分 |
| 専有面積 | 34.70 ㎡ (10.49 坪) |
| 築年月 | 1977年9月 | 総戸数 | 9戸 |
| 管理形態 | 自主管理 |
| 管理費 | 月額15,004円 |
| 修繕積立金 | 管理費に含む |
| 管理会社 | 自治会 |
| 施工会社 | 木内建設株式会社 |
| 現況 | 居住中(賃貸借契約) |
| 引渡日 | 相談 |
| ポイント |
☆駅徒歩3分 ☆エアコン2基 ☆フローリング ☆バス・トイレ別 |
| 設備内容 | 東京電力・公営水道・公共下水 |
| 備考 | ※本物件について、当サイト掲載内容と現況に相違がある場合は現況を優先と致します。 |
| 取引態様 | 売主 |
物件画像
| 間取図 | LDK |
|---|---|
![]() |
|
| キッチン | 洗面台 |
![]() |
|
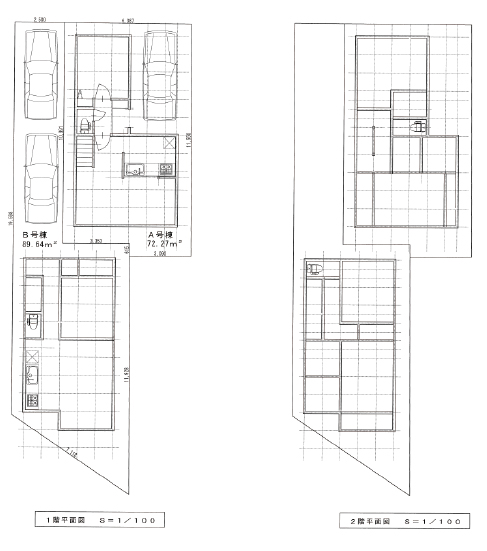
川口市東領家事業用地
物件概要
| 物件種別 | 売地 |
| 物件所在地 | 川口市東領家4丁目 |
| 最寄駅 | 日暮里舎人ライナー『舎人公園』駅徒歩13分 |
| 土地権利 | 所有権 |
| 地目 | 宅地 |
| 土地面積 | 公簿:105.89㎡(約32.03坪) |
| 接道状況 | 北側約6.35m公道面 西側約5.78m公道面 |
| 建物構造 | 鉄骨・木造スレート・セメント瓦葺2階建 |
| 建物面積 | 156.41㎡(47.31坪) |
| 築年数 | 昭和50年8月 |
| 種類 | 作業所・居宅 |
| 用途地域 | 工業地域 |
| 建蔽率/容積率 | 60%/200% |
| その他規制 | 建築基準法第22条区域 最低敷地100㎡ 景観計画区域 |
| 高度地区 | |
| ポイント | |
| 備考 | 残置物あり(精密プレス機械等)要相談 ※本物件について、当サイト掲載内容と現況に相違がある場合は現況を優先と致します。 |
物件画像
| 現地1 | 現地2 |
|---|---|
![]() |
![]() |
荒川区南千住事業用地
物件概要
| 物件種別 | 売地 |
| 物件所在地 | 荒川区南千住7-19 |
| 最寄駅 |
JR常磐線・つくばエクスプレス線・東京メトロ日比谷線『南千住』駅徒歩9分 京成線『千住大橋』駅徒歩7分 |
| 土地権利 | 所有権 |
| 地目 | 宅地 |
| 土地面積 | 公簿:97.44㎡(約29.47坪) |
| 接道状況 | 西側約44m公道面(日光街道) 南側約1.79m公道面 |
| 建物構造 | 鉄骨造陸屋根3階建 |
| 建物面積 | 141.84㎡(42.90坪) |
| 築年数 | 昭和43年2月 |
| 種類 | 店舗・居宅・倉庫 |
| 用途地域 | 商業地域 |
| 建蔽率/容積率 | 80%/600% |
| 防火地域 | 防火地域 |
| 高度地区 | 最低高度地区7m |
| ポイント | 駅近、日光街道沿い! |
| 備考 | ※本物件について、当サイト掲載内容と現況に相違がある場合は現況を優先と致します。 |
物件画像
| 現地1 | 現地2 |
|---|---|
![]() |
![]() |
| 現地3 | 現地4 |
![]() |
![]() |
梅が丘アイワマンション
物件概要
| 物件種別 | 中古マンション |
| 物件所在地 | 東京都世田谷区松原6丁目 |
| 最寄駅 | 小田急線「梅が丘」駅 徒歩2分 |
| 間取り | 1LDK |
| 土地権利 | 所有権 |
| 建物構造 | 鉄筋コンクリート造 7階建 3階部分 |
| 専有面積 | 39.42㎡ |
| 築年月 | 昭和45年5月 | 総戸数 | 28戸 |
| 管理形態 | 一部委託 |
| 管理費 | 月額8,700円 |
| 修繕積立金 | 月額13,050円 |
| 管理会社 | 株式会社菱サ・ビルウェア |
| 施工会社 | 新井組 |
| 現況 | 空室 |
| 引渡日 | 相談 |
| ポイント |
スケルトンリノベーション(令和3年10月完了) 駅徒歩2分の好立地 |
| 設備内容 | 東京電力・都市ガス・公共上下水 |
| 備考 | ※本物件について、当サイト掲載内容と現況に相違がある場合は現況を優先と致します。 |
| 取引態様 | 売主 |
物件画像
| 間取図 | 外観 |
|---|---|
![]() |
|
馬絹4丁目中古一戸建
物件概要
| 物件種別 | 中古一戸建 |
| 物件所在地 | 川崎市宮前区馬絹4丁目 |
| 最寄駅 | 東急田園都市線「宮崎台」駅徒歩19分 |
| 土地権利 | 所有権 |
| 土地面積 | 100.02㎡(実測) |
| 地目 | 宅地 |
| 用途地域 | 第一種中高層住居専用地域 |
| 建物構造 | 木造スレート葺2階建 |
| 建物面積 | 95.22㎡ |
| 間取り | 4LDK |
| 他法制限 | 第二種高度地区・準防火地域・宅地造成等規制法 |
| 接道状況 | 約4m私道 |
| ポイント |
★平成12年築、高台の4LDK! ★新規内装リフォーム! ★陽当りの良い2階リビング、人気の対面キッチン! |
備考 | ※本物件について、当サイト掲載内容と現況に相違がある場合は現況を優先と致します。 |
| 取引態様 | 売主 |
物件画像
| 間取図 | 外観 |
|---|---|
![]() |
![]() |
| リビング | |
![]() |
ジャルダン吉祥寺
物件概要
| 物件種別 | 中古マンション |
| 物件所在地 | 東京都武蔵野市吉祥寺本町1丁目 |
| 最寄駅 | JR中央線・京王井の頭線「吉祥寺」駅 徒歩4分 |
| 間取り | 1LDK |
| 土地権利 | 所有権 |
| 建物構造 | 鉄筋コンクリート造 6階建 5階部分 |
| 専有面積 | 壁芯 36.12㎡ |
| バルコニー面積 | 6.87㎡ |
| 築年月 | 昭和57年10月 | 総戸数 | 71戸 |
| 管理形態 | 全部委託 通勤 |
| 管理費 | 月額9,390円 |
| 修繕積立金 | 月額8,544円 |
| 管理会社 | 東京クリアランス工業株式会社 |
| 分譲会社 | クラレ不動産株式会社 |
| 現況 | 空室 |
| 引渡日 | 相談 |
| ポイント |
スケルトンリノベーション(令和2年9月完了) 新耐震基準のため、ローン安心!! |
| 設備内容 | 都市ガス・ガス給湯器・エレベーター |
| 備考 |
※ペット飼育不可 ※事務所使用不可 ※民泊不可 ※本物件について、当サイト掲載内容と現況に相違がある場合は現況を優先と致します。 |
| 取引態様 | 売主 |
物件画像
| 間取図 | 外観 |
|---|---|
![]() |
|
| リビング | 洗面所と浴室 |
![]() |
![]() |
売タウンハウス「セボンパサージュ荏原」
物件概要
| 物件種別 | 中古タウンハウス |
| 物件所在地 | 東京都品川区荏原 |
| 最寄駅 | 東急池上線「戸越銀座」駅 徒歩5分・「戸越」駅 徒歩7分 |
| 間取り | 3LDK+ルーフテラス |
| 土地権利 | 所有権 |
| 建物構造 | RC造地下1階地上3階建 |
| 専有面積 | 85.51㎡ |
| ルーフテラス | 約12.90㎡ |
| ポーチ面積 | 約3.23㎡ |
| 専用庭面積 | 約6.07㎡ |
| 築年月 | 平成16年11月 | 総戸数 | 6戸 |
| 管理形態 | 全部委託 巡回 |
| 管理費 | 月額18,400円 |
| 修繕積立金 | 月額10,260円 |
| 管理会社 | クラシテ(株) |
| 現況 | 空室 |
| 引渡日 | 相談 |
| ポイント | 駐車場1台無料、閑静な住宅街、ルーフテラス付 |
| 設備内容 | 宅配ボックス・オートロック |
| 備考 | ※本物件について、当サイト掲載内容と現況に相違がある場合は現況を優先と致します。 |
| 取引態様 | 売主 |
物件画像
| 間取図 | 外観 |
|---|---|
![]() |
![]() |
| 内装 | |
![]() |
秀和祐天寺レジデンス
物件概要
| 物件種別 | 中古マンション |
| 物件所在地 | 世田谷区下馬5丁目 |
| 最寄駅 | 東急東横線「祐天寺」駅 徒歩7分・「学芸大学」駅 徒歩14分 |
| 間取り | 1LDK |
| 土地権利 | 所有権 |
| 建物構造 | 鉄筋コンクリート造陸屋根 8階建 8階部分 |
| 専有面積 | 46.24㎡ (約13.98坪) |
| バルコニー面積 | 4㎡ (約1.21坪) |
| 築年月 | 昭和44年10月 | 総戸数 | 48戸 |
| 管理形態 | 全部委託 常駐 |
| 管理費 | 月額14,000円 |
| 修繕積立金 | 月額14,000円 |
| 管理会社 | レジデンス・ビルディング・マネジメント(株) |
| 現況 | 空室 |
| 引渡日 | 相談 |
| ポイント |
スケルトンリノベーション(令和2年4月末日完了) 最上階・眺望良好! 耐震補強工事済! フラット35適合証明書取得済! ※別途費用9.8万がかかります。 |
| 設備内容 | 都市ガス・公営水道・公共下水・東京電力・エレベーター |
| 備考 |
※ペット・楽器不可 ※都市計画道路(名称:補助線街路第26号) 計画決定有り ※本物件について、当サイト掲載内容と現況に相違がある場合は現況を優先と致します。 |
| 取引態様 | 専任媒介 |
物件画像
| 間取図 | |
|---|---|
![]() |
氷川町中古一戸建
物件概要
| 物件種別 | 中古一戸建 |
| 物件所在地 | 相模原市中央区氷川町 |
| 最寄駅 | 横浜線「相模原」駅徒歩7分 |
| 土地権利 | 所有権 |
| 土地面積 | 130.47㎡(登記簿) |
| 地目 | 宅地 |
| 用途地域 | 第一種住居地域 |
| 建物構造 | 軽量鉄骨造亜鉛メッキ鋼板葺2階建 |
| 建物面積 | 100.57㎡(登記簿) |
| 間取り | 5LDK |
| 建蔽率/容積率 | 60%/200% |
| 他法制限 | 日影規制、絶対高さ制限10m、景観法 |
| 接道状況 | 北6m公道 |
| ポイント |
★駅徒歩7分の好立地! ★近隣に公共・商業施設多数あり住環境良好! |
| 設備内容 | 公営水道・公共下水・東京ガス・東京電力 |
| 備考 | ※本物件について、当サイト掲載内容と現況に相違がある場合は現況を優先と致します。 |
| 取引態様 | 売主 |
物件画像
| 間取図 | 外観 |
|---|---|
![]() |
![]() |
藤和相模原ハイタウン
物件概要
| 物件種別 | 中古マンション |
| 物件所在地 | 相模原市中央区相模原1丁目 |
| 最寄駅 | 横浜線「相模原」駅徒歩5分 |
| 間取り | 2LDK+畳コーナー |
| 土地権利 | 所有権 |
| 建物構造 | 鉄筋コンクリート造10階建9階部分 |
| 専有面積 | 66.03㎡ |
| バルコニー面積 | 16.31㎡ |
| ポーチ面積 | 7.40㎡ |
| 築年月 | 昭和60年10月築 |
| 総戸数 | 140戸 |
| 管理形態 | 全部委託 日勤 |
| 管理費 | 月額7,400円 |
| 修繕積立金 | 月額13,990円 |
| 管理会社 | 三菱地所コミュニティ株式会社 |
| 現況 | 空室 |
| 引渡日 | 相談 |
| ポイント |
駅徒歩5分!! 3方向角部屋につき陽当たり、眺望良好! フルリフォームマンション ペット可! |
| 備考 | ※本物件について、当サイト掲載内容と現況に相違がある場合は現況を優先と致します。 |
| 取引態様 | 売主 |
物件画像
| 間取図 | |
|---|---|
![]() |
成田西売地
物件概要
| 物件種別 | 売地 |
| 物件所在地 | 東京都杉並区成田西 |
| 最寄駅 | 丸の内線「南阿佐ヶ谷」駅徒歩15分、京王井の頭線「浜田山」駅徒歩17分 |
| 土地権利 | 所有権 |
| 地目 | 宅地 |
| 土地面積 | 161.91㎡(登記簿) |
| 接道状況 | 北西側公道 幅員約15.00mに約8.88m接道 |
| 用途地域 | 第二種住居地域 |
| 建蔽率/容積率 | 60%/200% |
| 防火地域 | 準防火地域 |
| 高度地区 | 第二種高度地域 |
| ポイント | 2路線2駅利用可! |
| 備考 | ※本物件について、当サイト掲載内容と現況に相違がある場合は現況を優先と致します。 |
| 取引態様 | 売主 |
物件画像
| 現地 | 木造2階建プラン |
|---|---|
![]() |
![]() |
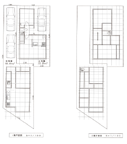
新築一戸建全2棟「府中市武蔵台」
物件概要
| 物件種別 | 新築一戸建 |
| 物件所在地 | 府中市武蔵台 |
| 最寄駅 | 中央線・武蔵野線「西国分寺」駅徒歩5分 |
| 間取り | 3LDK |
| 土地権利 | 所有権 |
| 地目 | 宅地 |
| 用途地域 | 近隣商業地域 |
| 建物構造 | 木造スレート葺3階建 |
| 土地面積 | A棟:47.63㎡(14.41坪) B棟:46.58㎡(14.09坪) |
| 建物面積 | A棟:87.92㎡(26.60坪) B棟:86.48㎡(26.16坪) |
| 建物完成 | 平成31年2月末 |
| ポイント |
★中央線・武蔵野線【西国分寺】駅徒歩5分の好立地! ★A棟:東西両面道路 B棟:東南西三面道路★カースペースあり ★フラット35対応住宅★全室南向き |
| 設備内容 | 公営水道・公共下水・都市ガス・東京電力 |
| 備考 | ※本物件について、当サイト掲載内容と現況に相違がある場合は現況を優先と致します。 |
| 取引態様 | 代理 |
物件画像
| A棟間取図 | B棟間取図 |
|---|---|
![]() |
![]() |
| 完成予想図 | 区画図 |
![]() |
![]() |
日神パレステージ本駒込
物件概要
| 物件種別 | 中古マンション |
| 物件所在地 | 東京都文京区本駒込 |
| 最寄駅 | JR山手線・JR南北線「駒込」駅徒歩8分・都営三田線「千石」駅徒歩9分 |
| 間取り | 2LDK+S(メゾネットタイプ) |
| 土地権利 | 所有権 |
| 建物構造 | 鉄筋コンクリート造6階建5,6階部分 |
| 専有面積 | 63.07㎡ |
| バルコニー面積 | 7.29㎡ |
| 築年月 | 平成2年4月 | 総戸数 | 71戸 |
| 管理形態 | 全部委託 巡回 |
| 管理費 | 月額25,857円 |
| 修繕積立金 | 月額12,530円 |
| 施工会社 | 株式会社片山組 |
| 分譲会社 | 医神和株式会社 |
| 管理会社 | 株式会社モリモトクオリティ |
| 現況 | 空室 |
| 引渡日 | 相談 |
| ポイント |
新規フルリノベーションマンション! メゾネット仕様による開放的な空間! 文京区の高台に佇む希少物件! |
| リノベーション内容 |
・全室クロス張替 ・フローリング新規張替 ・システムキッチン新規交換 ・ユニットバス新規交換 ・トイレ新規取付 ・エアコン新規3台設置 |
| 設備内容 | 東京電力・公営水道・都市ガス |
| 備考 | ※本物件について、当サイト掲載内容と現況に相違がある場合は現況を優先と致します。 |
| 取引態様 | 専任媒介 |
物件画像
| 間取図 | |
|---|---|
![]() |
|
| 外観 | 室内 |
![]() |
![]() |
ダイアパレス竹ノ塚Ⅱ
物件概要
| 物件種別 | 中古マンション |
| 物件所在地 | 東京都足立区西保木間 |
| 最寄駅 | 東武スカイツリーライン「谷塚」駅徒歩13分・「竹ノ塚」駅徒歩19分 |
| 間取り | 3LDK |
| 用途地域 | 準工業地域 |
| 土地権利 | 所有権 |
| 建物構造 | 鉄筋コンクリート造14階建14階部分 |
| 専有面積 | 68.71㎡ |
| バルコニー面積 | 10.06㎡ |
| 築年月 | 平成8年2月 | 総戸数 | 97戸 |
| 管理形態 | 全部委託 日勤 |
| 管理費 | 月額11,620円 |
| 修繕積立金 | 月額8,200円 |
| 施工会社 | 大和建設株式会社 |
| 管理会社 | コミュニティワン株式会社 |
| 現況 | 賃貸中 |
| 引渡日 | 相談 |
| 設備 | 公営水道・都市ガス・東京電力 |
| ポイント | 最上階の南向き部屋! |
| 設備内容 | 公営水道・都市ガス・東京電力㈱ |
| 備考 | ※本物件について、当サイト掲載内容と現況に相違がある場合は現況を優先と致します。 |
| 取引態様 | 専任媒介 |
物件画像
| 間取図 | 外観 |
|---|---|
![]() |
![]() |
コンフォール杉並パークサイド(賃貸)
物件概要
| 物件種別 | 賃貸アパート |
| 物件所在地 | 東京都杉並区松ノ木2丁目 |
| 最寄駅 | 東京メトロ丸ノ内線「南阿佐ヶ谷」・「新高円寺」駅徒歩13分 |
| 間取り | 1R |
| 建物構造 | 木造2階建 |
| 専有面積 | 約18~20㎡ |
| 築年月 | 平成28年5月 | 総戸数 | 全6室(1階3室・2階3室) |
| 賃料 | 月額71,000円~ |
| 共益費 | 月額5,000円 |
| 入居日 | 即可能 |
| 設備 | 公営水道・都市ガス・東京電力 |
| ポイント |
設備の充実した新築アパート、バス・トイレ別、室内洗濯機置場、コンビニ・スーパー・ドラッグストア至近、桜の名所「都立和田掘公園」至近、JR・丸の内線・井の頭線など3線利用可! 東京立正短期大学徒歩6分で学生さん歓迎! |
| 設備内容 |
・オートロック ・TVインターフォン ・ウォシュレット ・バス・トイレ別 ・全室エアコン完備 ・駐輪場完備 ・インターネット設備 ・IHクッキングヒーター |
| 備考 |
※当社指定火災保険要加入 ※当社指定賃貸保証会社要加入 ※ペット飼育不可 ※本物件について、当サイト掲載内容と現況に相違がある場合は現況を優先と致します。 |
| 取引態様 | 代理 |
物件画像
| 間取図 | 外観 |
|---|---|
![]() |
![]() |




































































